2201-3499 sq ft Log Home Plans

Hand Peeled | Hand Crafted | Cedar Log Homes

Sunset

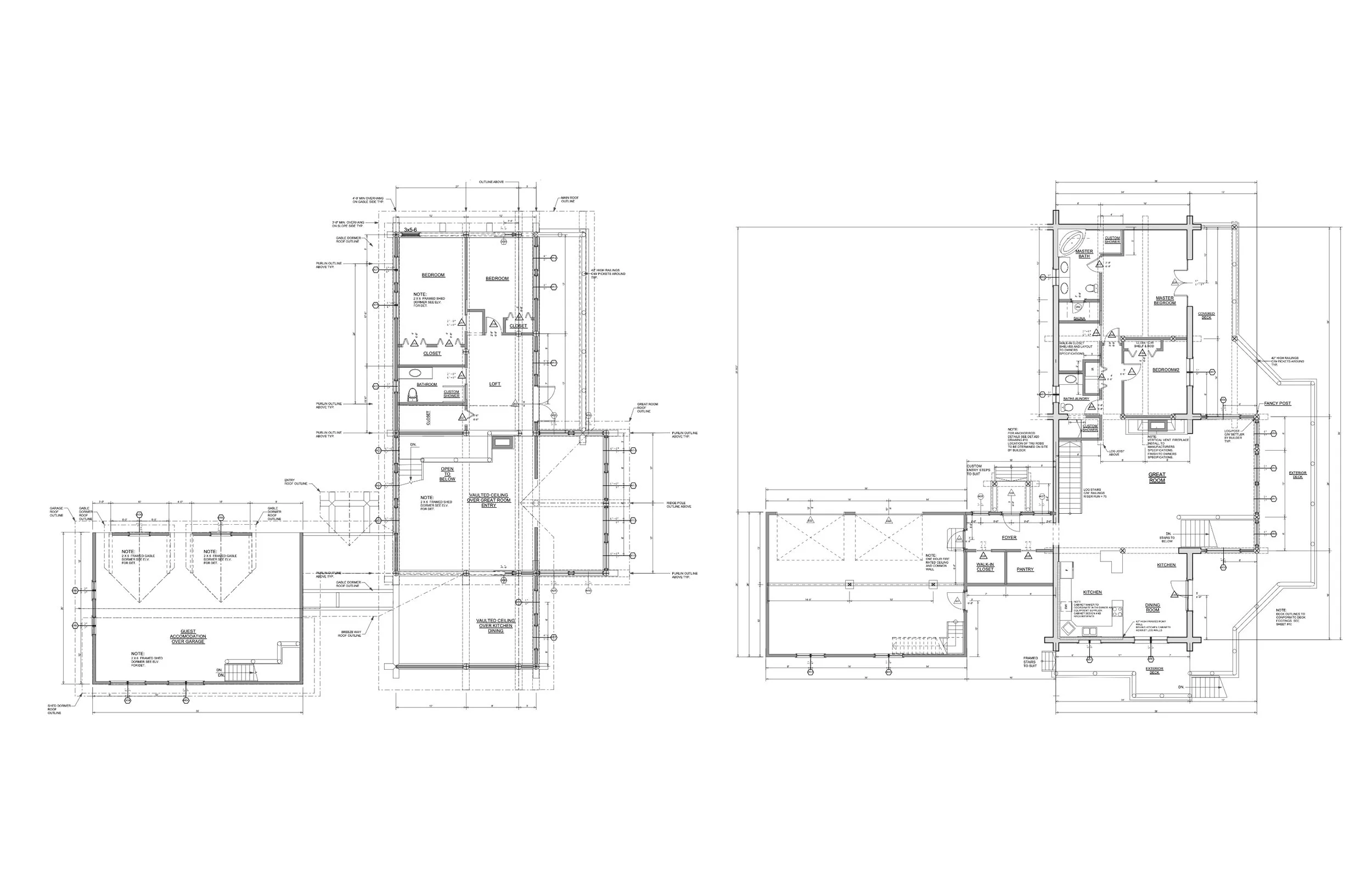
Plan B-25

4 Bedrooms, Large Great Room with floor to ceiling windows, Loft overlooking Great Room, Covered deck upper floor

Square Ft – Main: 2345
Square Ft – Upper: 820
Square Ft – Total: 3165

 

Contact us.

Shane@loghomescanada.com
1 888 564-2833

Log Homes Canada

P.O. Box 2490
Sardis, BC, V2R 1A8

Get a Quote

Previous
Previous

Big Timber Plan B-24

Next
Next

Log Art Plan B-26